收藏紀錄
 Shirakaba-dai Moss Garden House - 物件實景
 Shirakaba-dai Moss Garden House - 物件實景
 Shirakaba-dai Moss Garden House - 物件實景
 Shirakaba-dai Moss Garden House - 物件實景
 Shirakaba-dai Moss Garden House - 物件實景
 Shirakaba-dai Moss Garden House - 物件實景
 Shirakaba-dai Moss Garden House - 物件實景
 Shirakaba-dai Moss Garden House - 物件實景
返回上頁

Shirakaba-dai Moss Garden House

List Sotheby′s International Realty
List Sotheby's International Realty Japan
house

-
2361.60 平方呎
-
JPY 388,000,000

詳細資訊

build

區域介紹

located in the popular shirakaba-dai area,

this rare new villa offers both

the tranquility of natural surroundings

and convenient access.


■location: nakayama, karuizawa town, kitasaku district, nagano prefecture

■access: approx. 7 min by car from jr hokuriku shinkansen “karuizawa” station (4.2km)

approx. 7 min by car from shinano railway “naka-karuizawa” station (approx. 3.5km)

■land rights: freehold

■land area: official records 1,137㎡ (approx. 343.94 tsubo)

■private road burden: yes (approx. 99㎡)

■road: 5m setback from road, 3m setback from adjacent land and 1/2 height

■land classification: forest, public road

■road access: article 42, paragraph 1, item 3 road; west side road width approx. 4m, approx. 48m road frontage

■zoning district: first type low-rise residential district

■urban planning: non-designated area

■legal restrictions: article 22 area, nagano prefecture landscape ordinance,

karuizawa town nature conservation measures outline

■building coverage ratio/floor area ratio: 20%/20%

■building area: 219.40㎡ (approx. 66.36 tsubo)

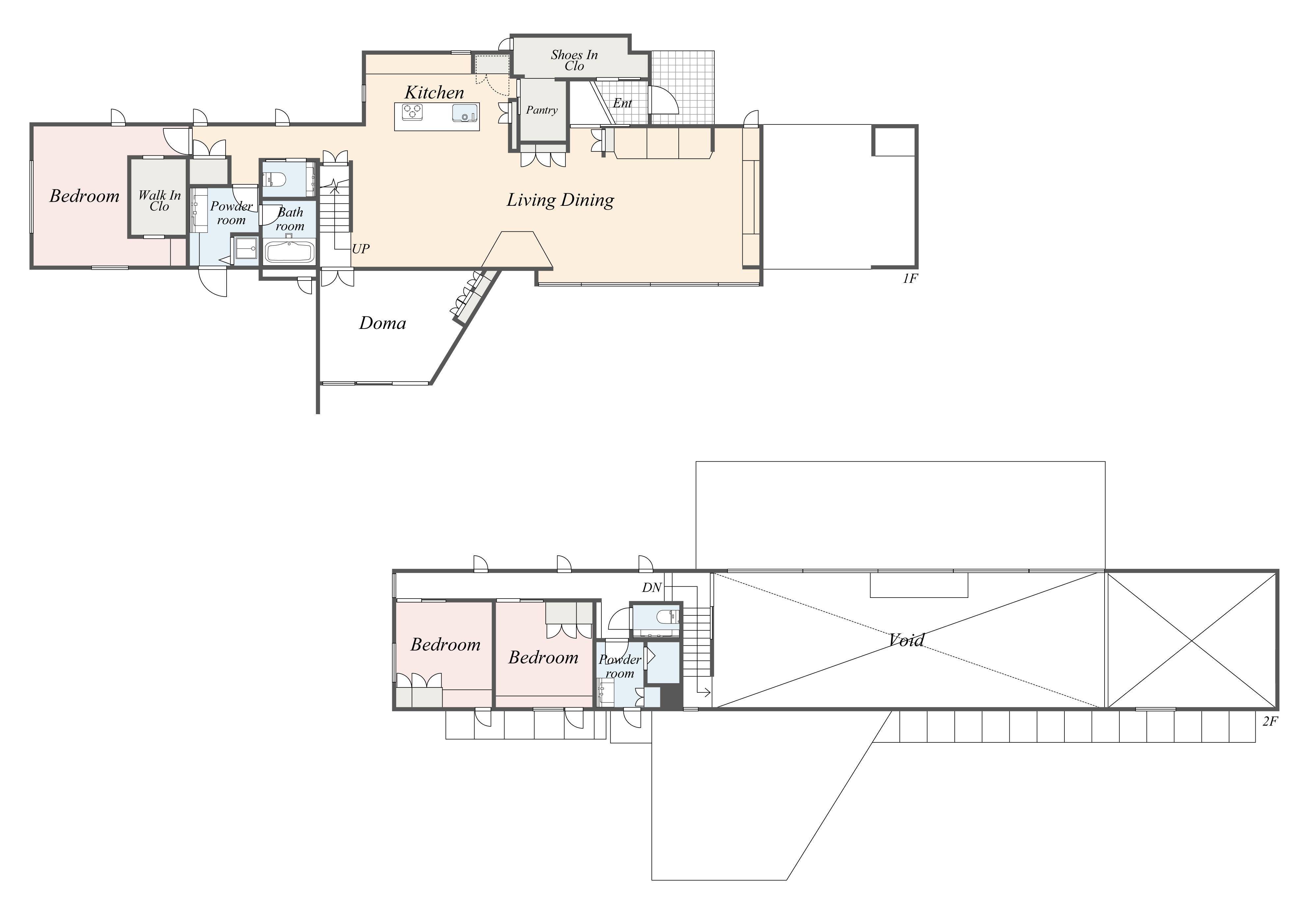
■floor plan: 3ldk

■structure: 2-story wooden structure

■construction date: december 2025

■building confirmation number: 6-saken no. 601-048

■parking: available

■current status: unfinished

■delivery: negotiable

■costs: water connection fee ¥132,000

■utilities: electricity, municipal water supply, septic tank, propane gas

■mode of transaction: brokerage.

■last update date: https://list-sir.jp/lp/date 

※a withholding tax of 10.21% will be applied.


為您推薦

Florence, United States

Edna Valley Wine Country Estate

Arroyo Grande, United States

BANYAN POINT

Punta Gorda, United States

240 Park Avenue South, 14B

New York, United States

Birds Creek Road / 4255 Lower Powdermill Road, Gatlinburg, TN 37876

Gatlinburg, United States